上本アパート東棟 - (株)良和ハウス上安店が提供する賃貸物件情報

3.5万円
管理費・共益費  -
7万円
-
保証金   -
敷引・償却   -
2DK
37m2
アパート
築51年
広島県広島市西区南観音1
広島電鉄江波線/舟入川口町駅 歩9分 [乗り換え案内]
広島電鉄江波線/舟入幸町駅 歩10分 [乗り換え案内]
広島電鉄江波線/舟入本町駅 歩13分 [乗り換え案内]
(株)良和ハウス上安店
TEL: 082-553-9390

お電話の際は、SUUMOを見たとお伝えいただくとスムーズです。

  • 部屋情報
  • 地図・周辺環境
  • 取り扱い店舗の情報
  • エリアの口コミ
中四国管理戸数No.1☆の【良和ハウス】LINEで接客もOK
最寄りのスーパーまで徒歩6分、コンビニまで徒歩8分、ドラッグストアまで徒歩6分◆バストイレ別◆室内に洗濯機置き場あり◆浴室に窓ありで換気がしやすい◆洋式トイレに改装◆良和ハウスまでお問い合わせください
  • 1/17
  • 2/17
  • 3/17
  • 4/17
  • 5/17
  • 6/17
  • 7/17
  • 8/17
  • 9/17
  • 10/17
  • 11/17
  • 12/17
  • 13/17
  • 14/17
  • 15/17
  • 16/17
  • 17/17
建物外観
※写真に誤りがある場合は こちら

(株)良和ハウス上安店
TEL: 082-553-9390

部屋の特徴・設備

  • バストイレ別、ガスコンロ対応、室内洗濯置、押入、即入居可、礼金不要、2面採光、単身者相談、3面採光、キッチンに窓、浴室に窓、3駅以上利用可、駅徒歩10分以内、和室、続き和室、プロパンガス、初期費用カード決済可、通風良好

物件概要

情報の見方

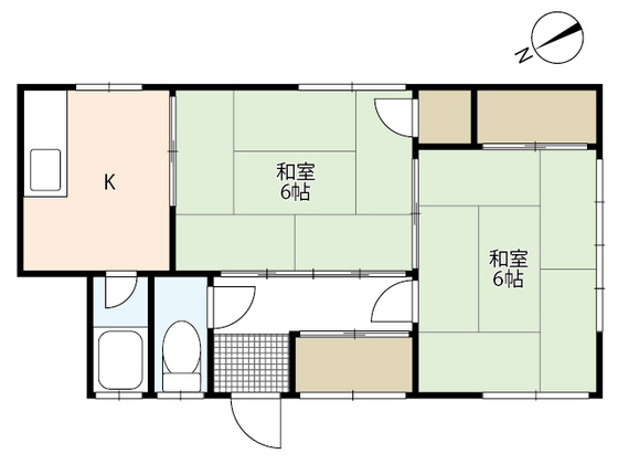
間取り詳細 和6 和6 DK4 構造 木造
階建 1階/2階建 築年月 1975年1月
エネルギー
消費性能
- 断熱性能 -
目安光熱費
  • -
損保 駐車場 -
入居 取引態様 仲介
条件 - 取り扱い店舗
物件コード
-
SUUMO
物件コード
100469702942 総戸数 -
情報更新日 2025/12/16 次回更新予定日 2025/12/24
保証会社
  • 保証会社利用必 要確認
 
周辺情報
  • くすりのレデイ南観音店(ドラッグストア)まで425m
  • そごう広島店(ショッピングセンター)まで3187m
  • スパーク観音店(スーパー)まで649m
  • ファミリーマート南観音一丁目店(コンビニ)まで302m
  • 広島市立舟入小学校(小学校)まで682m
  • 広島市立舟入市民病院(病院)まで730m

周辺環境を見る

携帯用QRコード
このQRコードを読み取ることで、
ケータイでも物件情報を見ることができます。

物件情報をメールに送る

(株)良和ハウス上安店
TEL: 082-553-9390

取り扱い店舗

【店舗写真】(株)良和ハウス上安店

(株)良和ハウス上安店

TEL:082-553-9390

  • 住所: 広島県広島市安佐南区上安2-29-3
  • 営業時間: 10時~18時、日祝10時~18時
  • 定休日: 水曜日
  • 免許番号: 国土交通大臣(2)第9113号 / (公社)広島県宅地建物取引業協会会員 /  中国地区不動産公正取引協議会加盟
  • 取引態様: 仲介
  • 部屋情報
  • 地図・周辺環境
  • 取り扱い店舗の情報
  • エリアの口コミ

【掲載物件情報について】

・SUUMOは「自ら居住するための住宅」をお探しの方に向けたポータルサイトです。契約者以外の方が使用する(例:第三者に宿泊させる等)ことを目的としたお問合せはご遠慮ください


・SUUMOではユーザーの皆様に最も信頼されるサイトを目指して、物件情報の精度向上に努めております。SUUMOに掲載されている物件情報について「事実と異なる点や誤解を招く表現がある」「成約済の物件が掲載されている」などにお気づきになりましたら、以下のページからご連絡ください

その他の情報

最寄駅から探す

最寄駅の沿線から探す

↑ページの先頭へ戻る

お気に入りに追加しました。