ダウントン 102号室

7.4万円
管理費・共益費  4000円
10万円
7.4万円
保証金   -
敷引・償却   -
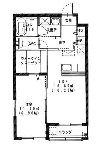
1LDK
45.61m2
南西
マンション
築4年
静岡県浜松市中央区佐鳴台3
遠鉄バス/佐鳴湖病院前 歩2分
JR東海道本線/高塚駅 歩35分 [乗り換え案内]
東海道新幹線/浜松駅 車14分(4.6km) [乗り換え案内]
(株)ナカノハウジング
TEL: 053-476-1388

お電話の際は、SUUMOを見たとお伝えいただくとスムーズです。

  • 部屋情報
  • 地図・周辺環境
  • エリアの口コミ
人気地区築浅オートロック物件!
設備充実・お財布に優しい都市ガスです♪2台目駐車場(敷地外)は紹介可です!
  • 1/20
  • 2/20
  • 3/20
  • 4/20
  • 5/20
  • 6/20
  • 7/20
  • 8/20
  • 9/20
  • 10/20
  • 11/20
  • 12/20
  • 13/20
  • 14/20
  • 15/20
  • 16/20
  • 17/20
  • 18/20
  • 19/20
  • 20/20
建物外観
※写真に誤りがある場合は こちら
(株)ナカノハウジング
TEL: 053-476-1388

部屋の特徴・設備

  • バストイレ別、バルコニー、エアコン、クロゼット、フローリング、シャワー付洗面台、TVインターホン、浴室乾燥機、オートロック、室内洗濯置、陽当り良好、シューズボックス、システムキッチン、追焚機能浴室、角住戸、温水洗浄便座、脱衣所、洗面所独立、洗面化粧台、2口コンロ、駐輪場、宅配ボックス、外壁タイル張り、即入居可、閑静な住宅地、2面採光、対面式キッチン、IHクッキングヒーター、照明付、駐車場1台無料、全居室洋室、ウォークインクロゼット、保証人不要、駐車2台可、二人入居相談、全居室フローリング、ネット使用料不要、緑豊かな住宅地、眺望良好、ダブルロックキー、1フロア2住戸、平坦地、南面リビング、四方角部屋、2駅利用可、バス停徒歩3分以内、築5年以内、平面駐車場、南西向き、全居室6畳以上、都市ガス、南面バルコニー、室内物干機、玄関収納、保証会社利用可、通風良好

物件概要

情報の見方

間取り詳細 洋6.9 LDK10.2 構造 鉄筋コン
階建 1階/3階建 築年月 2022年8月
エネルギー
消費性能
- 断熱性能 -
目安光熱費
  • -
損保 駐車場 付無料/駐2台可
入居 取引態様 仲介
条件 二人入居可 取り扱い店舗
物件コード
BT1-0007
SUUMO
物件コード
100451512393 総戸数 -
情報更新日 2025/12/07 次回更新予定日 2025/12/22
保証会社
  • 保証会社利用必 要確認
ほか初期費用
  • 合計3.3万円(内訳:鍵交換費用(税込)3.3万円)
ほか諸費用
  • 駆付け+保険:1990円自治会費:400円※2台目敷地外駐車場:4400円
備考
  • ※非喫煙者限定

情報掲載元物件はこちら
(株)ナカノハウジング
TEL: 053-476-1388

この物件を取り扱う店舗

(株)ナカノハウジング 取引態様:仲介
免許番号: 静岡県知事(7)第10485号 / (公社)静岡県宅地建物取引業協会会員 /  東海不動産公正取引協議会加盟
  • 駐車場あり
  • 駅まで車送迎
  • 開店10年以上
  • 女性スタッフ
  • 保証人不要相談可
学生さんのお部屋探しに自信があります!!浜松駅まで送迎サービスしております。
静岡県浜松市中央区住吉1-39-12
9:00~18:00
定休日: 木(2月・3月は無休)
遠鉄バス/和地山上 歩2分

053-476-1388
  • 部屋情報
  • 地図・周辺環境
  • エリアの口コミ

【掲載物件情報について】

・SUUMOは「自ら居住するための住宅」をお探しの方に向けたポータルサイトです。契約者以外の方が使用する(例:第三者に宿泊させる等)ことを目的としたお問合せはご遠慮ください


・SUUMOではユーザーの皆様に最も信頼されるサイトを目指して、物件情報の精度向上に努めております。SUUMOに掲載されている物件情報について「事実と異なる点や誤解を招く表現がある」「成約済の物件が掲載されている」などにお気づきになりましたら、以下のページからご連絡ください

その他の情報

最寄駅から探す

↑ページの先頭へ戻る

お気に入りに追加しました。