西武池袋線 狭山ヶ丘駅 3階建 新築

6.3万円
管理費・共益費  3500円
-
6.3万円
保証金   -
敷引・償却   -
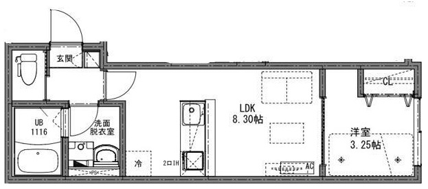
1LDK
27.12m2
北東
アパート
新築
埼玉県所沢市和ケ原1
西武池袋線/狭山ヶ丘駅 歩6分 [乗り換え案内]
西武池袋線/武蔵藤沢駅 歩21分 [乗り換え案内]
西武池袋線/小手指駅 バス16分 (バス停)狭山ヶ丘駅東口 歩8分 [乗り換え案内]
(株)VERUS
TEL: 03-6912-9770

お電話の際は、SUUMOを見たとお伝えいただくとスムーズです。

  • 部屋情報
  • 地図・周辺環境
  • エリアの口コミ
お問合せで手数料家賃の「75%OFF」分割・カード決済可
共用部には宅配ボックスが備え付けられているため、対面で荷物を受け取らなくて済みます。室内設備は浴室乾燥機・洗面所独立など豊富に揃っており、過ごしやすいお部屋になっております。
  • 1/3
  • 2/3
  • 3/3
建物外観
※写真に誤りがある場合は こちら
(株)VERUS
TEL: 03-6912-9770

部屋の特徴・設備

  • バストイレ別、エアコン、フローリング、浴室乾燥機、オートロック、室内洗濯置、シューズボックス、システムキッチン、角住戸、温水洗浄便座、洗面所独立、2口コンロ、宅配ボックス、CATV、敷金不要、ディンプルキー、ネット使用料不要、保証金不要、築2年以内、24時間換気システム、ガス暖房、築3年以内、2駅利用可、駅徒歩10分以内、築5年以内、都市ガス

物件概要

情報の見方

間取り詳細 洋3.2 LDK8.3 構造 木造
階建 1階/3階建 築年月 2026年2月
エネルギー
消費性能
- 断熱性能 -
目安光熱費
  • -
損保 1.56万円2年 駐車場 -
入居 '26年2月中旬 取引態様 仲介
条件 - 取り扱い店舗
物件コード
129382 463787
SUUMO
物件コード
100474812477 総戸数 -
情報更新日 2025/12/08 次回更新予定日 2025/12/16
契約期間
  • 普通借家 2年
仲介手数料
  • 0.25ヶ月
保証会社
  • 保証会社利用必 初回保証料:家賃総額50% 月額保証料:900円/月
ほか初期費用
  • 合計9.9万円(内訳:退去時クリーニング費用5.5万円 契約事務手数料1.65万円 鍵交換代2.75万円)
備考
  • ■クラブ会費:2,750円(税込)/月・火災保険(楽天損害保険株式会社様)・24時間サポート(※楽天損保加入者のみ)・インターネット使用料※火災保険はクラブ会費内に付帯しておりますので、別途費用はかかりません。

情報掲載元物件はこちら
(株)VERUS
TEL: 03-6912-9770

この物件を取り扱う店舗

(株)VERUS 取引態様:仲介
免許番号: 東京都知事(2)第103229号 / (公社)全日本不動産協会東京都本部会員 / (公社)首都圏不動産公正取引協議会加盟
  • 19時以降も営業
  • 年中無休
  • 賃貸保証対応
  • 保証人不要相談可
  • 入居ローン
一都三県お部屋探しの事なら株式会社VERUSへ
東京都豊島区東池袋1-35-9 サンストーリー東池袋1階
10:00から19:30
定休日: 毎週水曜日・年末年始
JR山手線/池袋駅 歩5分

03-6912-9770
  • 部屋情報
  • 地図・周辺環境
  • エリアの口コミ

【掲載物件情報について】

・SUUMOは「自ら居住するための住宅」をお探しの方に向けたポータルサイトです。契約者以外の方が使用する(例:第三者に宿泊させる等)ことを目的としたお問合せはご遠慮ください


・SUUMOではユーザーの皆様に最も信頼されるサイトを目指して、物件情報の精度向上に努めております。SUUMOに掲載されている物件情報について「事実と異なる点や誤解を招く表現がある」「成約済の物件が掲載されている」などにお気づきになりましたら、以下のページからご連絡ください

その他の情報

最寄駅から探す

最寄駅の沿線から探す

↑ページの先頭へ戻る

お気に入りに追加しました。