151a

4.3万円
管理費・共益費  3000円
-
8.6万円
保証金   -
敷引・償却   -
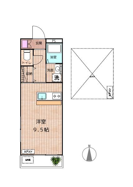
ワンルーム
23m2
アパート
築22年
群馬県高崎市上並榎町
JR信越本線/北高崎駅 歩23分 [乗り換え案内]
JR上越線/高崎問屋町駅 歩50分 [乗り換え案内]
JR高崎線/高崎駅 歩54分 [乗り換え案内]
(株)ホットショット高崎
TEL: 027-344-6664

お電話の際は、SUUMOを見たとお伝えいただくとスムーズです。

  • 部屋情報
  • 地図・周辺環境
  • エリアの口コミ
スーパー・ドラックストア隣接 生活便利な環境です
洋間10.5帖です!ワイドロフト8帖・高さ180センチあります!ロフトにもエアコン付・大学まで自転車で5分で通学も安心  カウンターキッチン・1Fのみシャッター
  • 1/15
  • 2/15
  • 3/15
  • 4/15
  • 5/15
  • 6/15
  • 7/15
  • 8/15
  • 9/15
  • 10/15
  • 11/15
  • 12/15
  • 13/15
  • 14/15
  • 15/15
建物外観 建物東側より撮影
※写真に誤りがある場合は こちら
(株)ホットショット高崎
TEL: 027-344-6664

部屋の特徴・設備

  • バストイレ別、バルコニー、エアコン、クロゼット、シャワー付洗面台、TVインターホン、室内洗濯置、陽当り良好、南向き、温水洗浄便座、洗面所独立、駐輪場、対面式キッチン、IHクッキングヒーター、照明付、ロフト、バイク置場、全室南向き、ISDN対応、プロパンガス、シャッター、シーリングファン、高速ネット対応、通風良好

物件概要

情報の見方

間取り詳細 - 構造 木造
階建 1階/2階建 築年月 2004年3月
エネルギー
消費性能
- 断熱性能 -
目安光熱費
  • -
損保 1.8万円2年 駐車場 -
入居 '26年4月初旬 取引態様 仲介
条件 学生限定/単身者限定 取り扱い店舗
物件コード
-
SUUMO
物件コード
000076720968 総戸数 -
情報更新日 2025/12/02 次回更新予定日 2025/12/17
仲介手数料
  • 1.1ヶ月
保証会社
  • 保証会社利用必 エポスカード 初回保証料10000円 月額保証料1%
ほか初期費用
  • 合計7.94万円(内訳:鍵交換22000円・クリーニング費用38500円 サポートコール24 16500円/2年 町内会費2400円/2年)
備考
  • 巡回管理/インターネット使用料 3190円/月

情報掲載元物件はこちら
(株)ホットショット高崎
TEL: 027-344-6664

この物件を取り扱う店舗

(株)ホットショット高崎 取引態様:仲介
免許番号: 群馬県知事(7)第4108号 / (一社)群馬県宅地建物取引業協会会員 / (公社)首都圏不動産公正取引協議会加盟
  • 駐車場あり
  • 開店10年以上
  • 駅まで車送迎
  • 女性スタッフ
  • 賃貸保証対応
高崎経済大学の学生専用物件多数ご用意しております。便利な合格発表前予約も受け付け中です 大学から2キロ圏内多数
群馬県高崎市下小塙町 1343-5
9:30~17:00
定休日: 年中無休
JR高崎線/高崎駅 駅より車(4.7km)

027-344-6664
  • 部屋情報
  • 地図・周辺環境
  • エリアの口コミ

【掲載物件情報について】

・SUUMOは「自ら居住するための住宅」をお探しの方に向けたポータルサイトです。契約者以外の方が使用する(例:第三者に宿泊させる等)ことを目的としたお問合せはご遠慮ください


・SUUMOではユーザーの皆様に最も信頼されるサイトを目指して、物件情報の精度向上に努めております。SUUMOに掲載されている物件情報について「事実と異なる点や誤解を招く表現がある」「成約済の物件が掲載されている」などにお気づきになりましたら、以下のページからご連絡ください

その他の情報

最寄駅から探す

最寄駅の沿線から探す

↑ページの先頭へ戻る

お気に入りに追加しました。