レオパレスSeto - (株)良和ハウス岡山駅西口店が提供する賃貸物件情報

3.7万円
管理費・共益費  6500円
-
-
保証金   -
敷引・償却   -
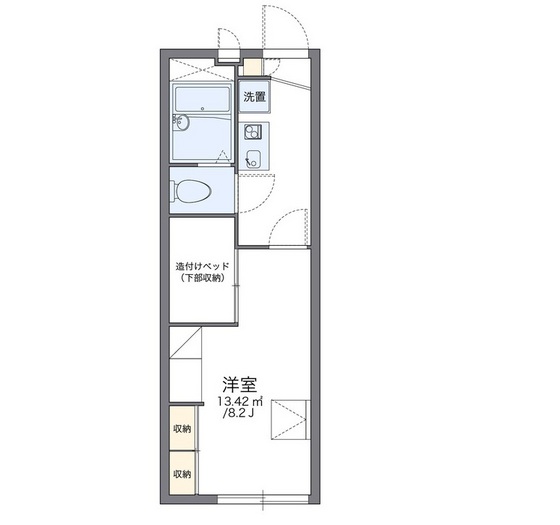
1K
22.35m2
南東
アパート
築22年
岡山県岡山市東区瀬戸町瀬戸
JR山陽本線/瀬戸駅 歩10分 [乗り換え案内]
JR山陽本線/万富駅 歩61分 [乗り換え案内]
JR山陽本線/上道駅 歩71分 [乗り換え案内]
(株)良和ハウス岡山駅西口店
TEL: 086-899-8115

お電話の際は、SUUMOを見たとお伝えいただくとスムーズです。

  • 部屋情報
  • 地図・周辺環境
  • 取り扱い店舗の情報
  • エリアの口コミ
JR瀬戸駅徒歩圏内☆宅配ボックス完備
角部屋に空きが出ました☆家具家電付き・水道料込み☆お車でご来店の際は、店舗前駐車場もしくは、周辺のコインパーキングをご利用いただければ、弊社の方でご精算させていただきます。
  • 1/15
  • 2/15
  • 3/15
  • 4/15
  • 5/15
  • 6/15
  • 7/15
  • 8/15
  • 9/15
  • 10/15
  • 11/15
  • 12/15
  • 13/15
  • 14/15
  • 15/15
建物外観
※写真に誤りがある場合は こちら

(株)良和ハウス岡山駅西口店
TEL: 086-899-8115

部屋の特徴・設備

  • バストイレ別、エアコン、クロゼット、TVインターホン、浴室乾燥機、室内洗濯置、シューズボックス、システムキッチン、角住戸、温水洗浄便座、宅配ボックス、即入居可、礼金不要、最上階、敷金不要、IHクッキングヒーター、照明付、全居室洋室、単身者相談、冷蔵庫、仲介手数料不要、二人入居相談、洗濯機、平坦地、電子レンジ、ベッド、家電付、家具付、3駅以上利用可、駅徒歩10分以内、上階無し、平面駐車場、東南向き、敷金・礼金不要

物件概要

情報の見方

間取り詳細 洋8.2 K0 構造 鉄骨
階建 2階/2階建 築年月 2004年11月
エネルギー
消費性能
- 断熱性能 -
目安光熱費
  • -
損保 - 駐車場 敷地内5500円
入居 取引態様 仲介
条件 - 取り扱い店舗
物件コード
-
SUUMO
物件コード
100451469794 総戸数 -
情報更新日 2025/12/10 次回更新予定日 2025/12/18
ほか初期費用
  • 合計5.83万円(内訳:ハウスクリーニング:41800円/カギ交換代:16500円)
ほか諸費用
  • 町内会費:550円
 
周辺情報
  • 岡山市立江西小学校(小学校)まで1853m
  • 瀬戸桜保育園(幼稚園・保育園)まで1146m
  • 岡山県立瀬戸高校(高校・高専)まで578m
  • 岡山市東区役所瀬戸支所(役所)まで886m
  • 備前瀬戸郵便局(郵便局)まで356m
  • 岡山市立瀬戸中学校(中学校)まで373m

周辺環境を見る

携帯用QRコード
このQRコードを読み取ることで、
ケータイでも物件情報を見ることができます。

物件情報をメールに送る

(株)良和ハウス岡山駅西口店
TEL: 086-899-8115

取り扱い店舗

【店舗写真】(株)良和ハウス岡山駅西口店

(株)良和ハウス岡山駅西口店

TEL:086-899-8115

  • 住所: 岡山県岡山市北区奉還町2-1-27
  • 営業時間: 10時~18時
  • 定休日: 火曜日
  • 免許番号: 国土交通大臣(2)第9113号 / (公社)岡山県宅地建物取引業協会会員 /  中国地区不動産公正取引協議会加盟
  • 取引態様: 仲介
  • 部屋情報
  • 地図・周辺環境
  • 取り扱い店舗の情報
  • エリアの口コミ

【掲載物件情報について】

・SUUMOは「自ら居住するための住宅」をお探しの方に向けたポータルサイトです。契約者以外の方が使用する(例:第三者に宿泊させる等)ことを目的としたお問合せはご遠慮ください


・SUUMOではユーザーの皆様に最も信頼されるサイトを目指して、物件情報の精度向上に努めております。SUUMOに掲載されている物件情報について「事実と異なる点や誤解を招く表現がある」「成約済の物件が掲載されている」などにお気づきになりましたら、以下のページからご連絡ください

その他の情報

最寄駅から探す

最寄駅の沿線から探す

↑ページの先頭へ戻る

お気に入りに追加しました。