地下鉄烏丸線 北大路駅 2階建 築41年

4万円
管理費・共益費  -
5万円
5万円
保証金   -
敷引・償却   -
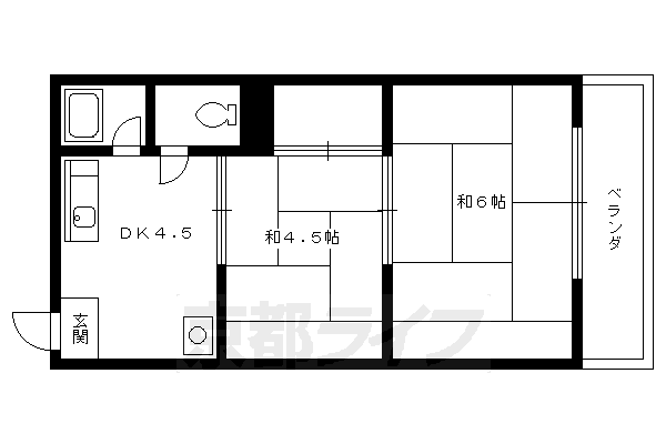
2DK
30m2
アパート
築41年
京都府京都市北区上賀茂柊谷町
地下鉄烏丸線/北大路駅 歩52分 [乗り換え案内]
叡山電鉄鞍馬線/二軒茶屋駅 歩38分 [乗り換え案内]
地下鉄烏丸線/北山駅 歩55分 [乗り換え案内]
(株)京都ライフ西大路店
TEL: 075-585-6501

お電話の際は、SUUMOを見たとお伝えいただくとスムーズです。

  • 部屋情報
  • 地図・周辺環境
  • エリアの口コミ
自然に囲まれた柊野2DK
自然に囲まれた柊野ハイツ。2口コンロ設置OKでお料理バッチリ 物件情報からエリア情報まで京都の賃貸物件紹介はお任せください!
  • 1/20
  • 2/20
  • 3/20
  • 4/20
  • 5/20
  • 6/20
  • 7/20
  • 8/20
  • 9/20
  • 10/20
  • 11/20
  • 12/20
  • 13/20
  • 14/20
  • 15/20
  • 16/20
  • 17/20
  • 18/20
  • 19/20
  • 20/20
建物外観
※写真に誤りがある場合は こちら
(株)京都ライフ西大路店
TEL: 075-585-6501

部屋の特徴・設備

  • バストイレ別、バルコニー、エアコン、ガスコンロ対応、フローリング、南向き、洗面所独立、駐輪場、押入、即入居可、最上階、二人入居相談、3駅以上利用可、上階無し、和室、プロパンガス、IT重説 対応物件

物件概要

情報の見方

間取り詳細 和6 和4.5 DK4.5 構造 軽量鉄骨
階建 2階/2階建 築年月 1985年8月
エネルギー
消費性能
- 断熱性能 -
目安光熱費
  • -
損保 2.2万円2年 駐車場 -
入居 取引態様 仲介
条件 二人入居可/子供可 取り扱い店舗
物件コード
K27881-208
SUUMO
物件コード
100476620091 総戸数 18戸
情報更新日 2025/12/08 次回更新予定日 2025/12/23
保証会社
  • 保証会社利用必 初回:月額賃料等の100%、更新時:1万円/1年
ほか初期費用
  • 合計1.65万円(内訳:書類代1.65万円)
備考
  • 京都バス柊野駅徒歩10分/巡回管理/更新料:新家賃1ヶ月

情報掲載元物件はこちら
(株)京都ライフ西大路店
TEL: 075-585-6501

この物件を取り扱う店舗

(株)京都ライフ西大路店 取引態様:仲介
免許番号: 京都府知事(11)第6353号
  • 開店10年以上
  • 年中無休
  • 駅徒歩3分以内
  • 多店舗展開
  • 引越会社紹介
JR西大路駅から東に徒歩1分!小さなことでもお気軽にご相談ください。
京都府京都市南区唐橋西平垣町 38-1 ルミエール唐橋1階
09:30~19:00
定休日: 年中無休(盆・正月を除く)
JR東海道本線/西大路駅 歩1分

075-585-6501
  • 部屋情報
  • 地図・周辺環境
  • エリアの口コミ

【掲載物件情報について】

・SUUMOは「自ら居住するための住宅」をお探しの方に向けたポータルサイトです。契約者以外の方が使用する(例:第三者に宿泊させる等)ことを目的としたお問合せはご遠慮ください


・SUUMOではユーザーの皆様に最も信頼されるサイトを目指して、物件情報の精度向上に努めております。SUUMOに掲載されている物件情報について「事実と異なる点や誤解を招く表現がある」「成約済の物件が掲載されている」などにお気づきになりましたら、以下のページからご連絡ください

その他の情報

最寄駅から探す

最寄駅の沿線から探す

↑ページの先頭へ戻る

お気に入りに追加しました。