東京メトロ半蔵門線 水天宮前駅 11階建 築18年

18万円
管理費・共益費  15000円
18万円
18万円
保証金   -
敷引・償却   -
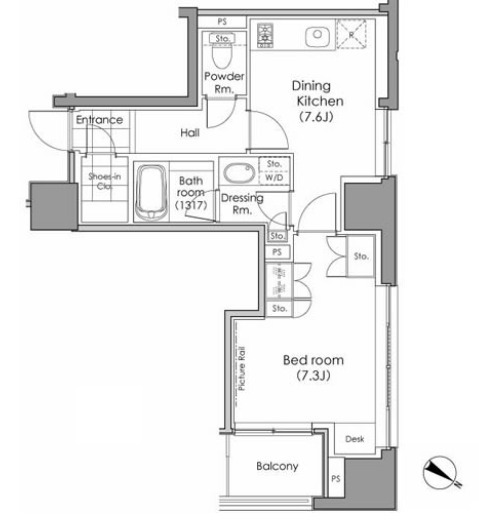
1DK
41.51m2
北東
マンション
築18年
東京都中央区日本橋蛎殻町2
東京メトロ半蔵門線/水天宮前駅 歩3分 [乗り換え案内]
東京メトロ日比谷線/人形町駅 歩7分 [乗り換え案内]
都営新宿線/浜町駅 歩11分 [乗り換え案内]
リブマックス新橋駅前店(株)リブマックスリーシング
TEL: 03-3503-5050

お電話の際は、SUUMOを見たとお伝えいただくとスムーズです。

  • 部屋情報
  • 地図・周辺環境
  • エリアの口コミ
★ネット上の気になる物件は当社でまとめてご紹介可能です★
防犯カメラ・モニタ付オートロックなのでセキュリティ面充実★宅配BOX・浴室乾燥など設備も充実☆彡
  • 1/20
  • 2/20
  • 3/20
  • 4/20
  • 5/20
  • 6/20
  • 7/20
  • 8/20
  • 9/20
  • 10/20
  • 11/20
  • 12/20
  • 13/20
  • 14/20
  • 15/20
  • 16/20
  • 17/20
  • 18/20
  • 19/20
  • 20/20
建物外観
※写真に誤りがある場合は こちら
リブマックス新橋駅前店(株)リブマックスリーシング
TEL: 03-3503-5050

部屋の特徴・設備

  • バストイレ別、バルコニー、エアコン、クロゼット、フローリング、TVインターホン、浴室乾燥機、オートロック、室内洗濯置、システムキッチン、角住戸、温水洗浄便座、脱衣所、エレベーター、洗面所独立、洗面化粧台、2口コンロ、駐輪場、宅配ボックス、光ファイバー、防犯カメラ、ペット相談、照明付、電気コンロ、CATVインターネット、2沿線利用可、CS、ネット専用回線、洗濯機、内装リフォーム済、24時間換気システム、2駅利用可、駅徒歩5分以内、24時間ゴミ出し可、敷地内ごみ置き場、都市ガス、シューズWIC、BS、初期費用カード決済可

物件概要

情報の見方

間取り詳細 洋7.3 DK7.6 構造 鉄筋コン
階建 2階/11階建 築年月 2008年3月
エネルギー
消費性能
- 断熱性能 -
目安光熱費
  • -
損保 駐車場 近隣800m40000円
入居 相談 取引態様 仲介
条件 ペット相談 取り扱い店舗
物件コード
2995609
SUUMO
物件コード
100475107455 総戸数 -
情報更新日 2026/01/09 次回更新予定日 2026/01/17
契約期間
  • 普通借家 2年
ほか初期費用
  • 合計8.48万円(内訳:鍵交換費3.3万円 安心サポート1.98万円 火災保険3.2万円)
備考
  • 保証料総賃料の50%、ペット飼育時敷金1ヶ月追加

情報掲載元物件はこちら
リブマックス新橋駅前店(株)リブマックスリーシング
TEL: 03-3503-5050

この物件を取り扱う店舗

リブマックス新橋駅前店(株)リブマックスリーシング 取引態様:仲介
免許番号: 国土交通大臣(3)第8116号 / (公社)東京都宅地建物取引業協会会員 / (公社)首都圏不動産公正取引協議会加盟
  • 駅徒歩3分以内
  • 女性スタッフ
  • 年中無休
  • 法人契約取扱
  • 社宅・寮対応
リブマックス全店にて仲介手数料が・・・家賃の・・・半月分!!!
東京都港区新橋2-6-7 花菱ビル5階
9:00~19:00
定休日: なし
JR山手線/新橋駅 歩1分
都営三田線/内幸町駅 歩3分
03-3503-5050
  • 部屋情報
  • 地図・周辺環境
  • エリアの口コミ

【掲載物件情報について】

・SUUMOは「自ら居住するための住宅」をお探しの方に向けたポータルサイトです。契約者以外の方が使用する(例:第三者に宿泊させる等)ことを目的としたお問合せはご遠慮ください


・SUUMOではユーザーの皆様に最も信頼されるサイトを目指して、物件情報の精度向上に努めております。SUUMOに掲載されている物件情報について「事実と異なる点や誤解を招く表現がある」「成約済の物件が掲載されている」などにお気づきになりましたら、以下のページからご連絡ください

その他の情報

最寄駅から探す

最寄駅の沿線から探す

↑ページの先頭へ戻る

お気に入りに追加しました。