第二永井荘 206号室

3.9万円
管理費・共益費  3000円
-
-
保証金   -
敷引・償却   -
2K
20m2
アパート
築51年
京都府向日市上植野町南小路
阪急京都線/西向日駅 歩10分 [乗り換え案内]
JR東海道本線/長岡京駅 歩25分 [乗り換え案内]
阪急京都線/長岡天神駅 歩24分 [乗り換え案内]
(株)京都ライフ西院店
TEL: 075-311-8221

お電話の際は、SUUMOを見たとお伝えいただくとスムーズです。

  • 部屋情報
  • 地図・周辺環境
  • エリアの口コミ
ひっそりアパートです
駐車場あり、都市ガス、南向き、駐輪場 物件情報からエリア情報まで京都の賃貸物件紹介はお任せください!
  • 1/19
  • 2/19
  • 3/19
  • 4/19
  • 5/19
  • 6/19
  • 7/19
  • 8/19
  • 9/19
  • 10/19
  • 11/19
  • 12/19
  • 13/19
  • 14/19
  • 15/19
  • 16/19
  • 17/19
  • 18/19
  • 19/19
建物外観
※写真に誤りがある場合は こちら
(株)京都ライフ西院店
TEL: 075-311-8221

部屋の特徴・設備

  • バストイレ別、バルコニー、ガスコンロ対応、南向き、駐輪場、押入、即入居可、礼金不要、最上階、敷金不要、二人入居相談、バイク置場、3駅以上利用可、駅徒歩10分以内、上階無し、和室、都市ガス、IT重説 対応物件

物件概要

情報の見方

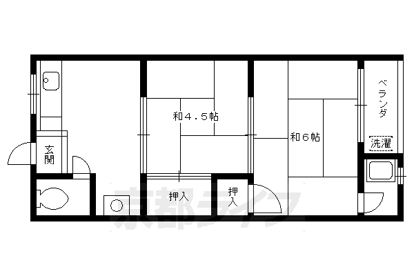
間取り詳細 和6 和4.5 K3 構造 木造
階建 2階/2階建 築年月 1975年4月
エネルギー
消費性能
- 断熱性能 -
目安光熱費
  • -
損保 2万円2年 駐車場 -
入居 取引態様 仲介
条件 二人入居可/子供可 取り扱い店舗
物件コード
K18900-206
SUUMO
物件コード
100469062686 総戸数 10戸
情報更新日 2025/12/09 次回更新予定日 2025/12/17
保証会社
  • 日本セーフティー利用必 初回:月額賃料等の50%、更新時:1万円/1年
ほか初期費用
  • 合計4.18万円(内訳:書類代1.1万円 抗菌除菌処理代3.08万円)
ほか諸費用
  • LIFE SUPPORT1.65万円/2年
備考
  • 阪急バス堂ノ前駅徒歩4分/更新料:新家賃1ヶ月

情報掲載元物件はこちら
(株)京都ライフ西院店
TEL: 075-311-8221

この物件を取り扱う店舗

(株)京都ライフ西院店 取引態様:仲介
免許番号: 京都府知事(11)第6353号 / (公社)京都府宅地建物取引業協会会員 / (公社)近畿地区不動産公正取引協議会加盟
  • 駅徒歩3分以内
  • 駐車場あり
  • 開店10年以上
  • 法人契約取扱
  • 駅まで車送迎
粘り強く、諦めない。をモットーにお部屋を探しつづけます!当社自慢の営業マンにあなたのわがままぶつけて下さい。
京都府京都市右京区西院巽町 10
09:30~19:00
定休日: 年中無休(盆正月を除く)
阪急京都線/西院駅 歩3分

075-311-8221
  • 部屋情報
  • 地図・周辺環境
  • エリアの口コミ

【掲載物件情報について】

・SUUMOは「自ら居住するための住宅」をお探しの方に向けたポータルサイトです。契約者以外の方が使用する(例:第三者に宿泊させる等)ことを目的としたお問合せはご遠慮ください


・SUUMOではユーザーの皆様に最も信頼されるサイトを目指して、物件情報の精度向上に努めております。SUUMOに掲載されている物件情報について「事実と異なる点や誤解を招く表現がある」「成約済の物件が掲載されている」などにお気づきになりましたら、以下のページからご連絡ください

その他の情報

最寄駅から探す

最寄駅の沿線から探す

↑ページの先頭へ戻る

お気に入りに追加しました。