Terra蚕糸の森

15.4万円
管理費・共益費  10000円
15.4万円
30.8万円
保証金   -
敷引・償却   -
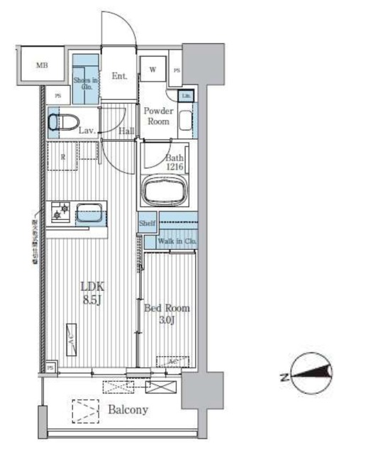
1LDK
31.85m2
西
マンション
新築
東京都杉並区和田3
東京メトロ丸ノ内線/東高円寺駅 歩1分 [乗り換え案内]
東京メトロ丸ノ内線/方南町駅 歩16分 [乗り換え案内]
東京メトロ丸ノ内線/新高円寺駅 歩14分 [乗り換え案内]
アエラス荻窪店 (株)アエラス.FR
TEL: 03-5335-0262

お電話の際は、SUUMOを見たとお伝えいただくとスムーズです。

  • 部屋情報
  • 地図・周辺環境
  • エリアの口コミ
オンラインで申込から契約手続き、LINEでのご相談も可能です
当物件は初期費用分割払い可(クレジットカード決済も可)/お客様のご希望に合わせた方法(店頭、オンライン等)で物件をご提案いたします。初期費用のお見積りや入居希望日のご相談もお気軽にお問い合わせください
アエラス荻窪店 (株)アエラス.FR
TEL: 03-5335-0262
※映像に誤りがある場合は こちら
  • 1/7
  • 2/7
  • 3/7
  • 4/7
  • 5/7
  • 6/7
  • 7/7
間取り図
※写真に誤りがある場合は こちら
アエラス荻窪店 (株)アエラス.FR
TEL: 03-5335-0262

部屋の特徴・設備

  • バストイレ別、バルコニー、エアコン、ガスコンロ対応、フローリング、TVインターホン、浴室乾燥機、オートロック、室内洗濯置、システムキッチン、温水洗浄便座、脱衣所、エレベーター、洗面所独立、洗面化粧台、2口コンロ、宅配ボックス、光ファイバー、外壁タイル張り、BS・CS、防犯カメラ、ウォークインクロゼット、敷金1ヶ月、二人入居相談、2沿線利用可、ネット使用料不要、保証金不要、外壁コンクリート、3駅以上利用可、駅前、駅徒歩5分以内、24時間ゴミ出し可、高速ネット対応、礼金2ヶ月、初期費用カード決済可

物件概要

情報の見方

間取り詳細 - 構造 鉄筋コン
階建 7階/11階建 築年月 2025年2月
エネルギー
消費性能
- 断熱性能 -
目安光熱費
  • -
損保 駐車場 敷地内41800円
入居 '26年3月中旬 取引態様 仲介
条件 二人入居可/子供可/事務所利用不可 取り扱い店舗
物件コード
69025543
SUUMO
物件コード
100476084301 総戸数 -
情報更新日 2025/12/07 次回更新予定日 2025/12/15
契約期間
  • 普通借家 2年
保証会社
  • 保証会社利用必 初回:賃料等の50%(最低15000円)、2年目以降:10000円/年
備考
  • 杉並区立和田小学校まで390m/堀ノ内東保育園まで287m/収納手数料110円月額/退去時清掃費59400円駐輪場ステッカー代 1100円 台数1台につきステッカー1枚貼付/鍵交換代借主負担/エアコン清掃費用借主負担(退去時)/短期違約金有

情報掲載元物件はこちら
アエラス荻窪店 (株)アエラス.FR
TEL: 03-5335-0262

この物件を取り扱う店舗

アエラス荻窪店 (株)アエラス.FR 取引態様:仲介
免許番号: 国土交通大臣(1)第10206号 / (公社)東京都宅地建物取引業協会会員 / (公社)首都圏不動産公正取引協議会加盟
  • 駅徒歩3分以内
  • 多店舗展開
  • 保証人不要相談可
  • 19時以降も営業
  • 女性スタッフ
まずは、どのような事でも「ご相談」ください。お客様の希望物件が見つかるまで、とことんお付き合いさせて頂きます。
東京都杉並区天沼3-3-7 荻窪駅前第24大京ビル 6階
10:00~19:00(時間外対応出来る場合有り)
定休日: 毎週水曜日
JR中央線/荻窪駅 歩1分

03-5335-0262
  • 部屋情報
  • 地図・周辺環境
  • エリアの口コミ

【掲載物件情報について】

・SUUMOは「自ら居住するための住宅」をお探しの方に向けたポータルサイトです。契約者以外の方が使用する(例:第三者に宿泊させる等)ことを目的としたお問合せはご遠慮ください


・SUUMOではユーザーの皆様に最も信頼されるサイトを目指して、物件情報の精度向上に努めております。SUUMOに掲載されている物件情報について「事実と異なる点や誤解を招く表現がある」「成約済の物件が掲載されている」などにお気づきになりましたら、以下のページからご連絡ください

その他の情報

最寄駅から探す

最寄駅の沿線から探す

↑ページの先頭へ戻る

お気に入りに追加しました。