カーサ ジェンティーレ

7.4万円
管理費・共益費  4100円
-
7.4万円
保証金   -
敷引・償却   -
1LDK
52.99m2
西
アパート
築13年
京都府京都市伏見区石田森東町
地下鉄東西線/石田駅 歩5分 [乗り換え案内]
JR奈良線/六地蔵駅 歩15分 [乗り換え案内]
地下鉄東西線/六地蔵駅 歩15分 [乗り換え案内]
(株)京都ライフ今出川店
TEL: 075-414-2588

お電話の際は、SUUMOを見たとお伝えいただくとスムーズです。

  • 部屋情報
  • 地図・周辺環境
  • エリアの口コミ
充実設備マンション!
追い炊き機能付き浴槽 浴室乾燥機 シャンプードレッサー 物件情報からエリア情報まで京都の賃貸物件紹介はお任せください!
  • 1/20
  • 2/20
  • 3/20
  • 4/20
  • 5/20
  • 6/20
  • 7/20
  • 8/20
  • 9/20
  • 10/20
  • 11/20
  • 12/20
  • 13/20
  • 14/20
  • 15/20
  • 16/20
  • 17/20
  • 18/20
  • 19/20
  • 20/20
建物外観
※写真に誤りがある場合は こちら
(株)京都ライフ今出川店
TEL: 075-414-2588

部屋の特徴・設備

  • バストイレ別、バルコニー、エアコン、ガスコンロ対応、フローリング、シャワー付洗面台、TVインターホン、浴室乾燥機、室内洗濯置、陽当り良好、追焚機能浴室、温水洗浄便座、洗面所独立、駐輪場、押入、最上階、敷金不要、対面式キッチン、ペット相談、全居室洋室、保証人不要、二人入居相談、ネット使用料不要、3駅以上利用可、駅徒歩5分以内、上階無し、敷地内ごみ置き場、平面駐車場、LDK12畳以上、全居室6畳以上、都市ガス、BS、年度内入居可、礼金1ヶ月、IT重説 対応物件、初期費用カード決済可、家賃カード決済可

物件概要

情報の見方

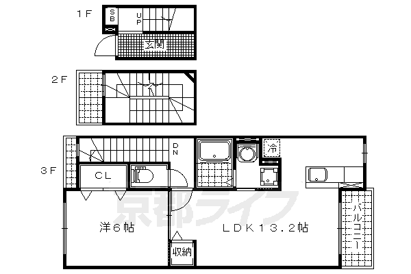
間取り詳細 洋6 LDK13.2 構造 木造
階建 3階/3階建 築年月 2013年12月
エネルギー
消費性能
- 断熱性能 -
目安光熱費
  • -
損保 2.2万円2年 駐車場 敷地内11000円/平置駐
入居 '26年1月中旬 取引態様 仲介
条件 二人入居可/子供可/ペット相談 取り扱い店舗
物件コード
K33835-303
SUUMO
物件コード
100476690287 総戸数 12戸
情報更新日 2025/12/16 次回更新予定日 2025/12/24
ほか初期費用
  • 合計7.33万円(内訳:ハウスクリーニング代7万円 鍵交換代金3300円)
ほか諸費用
  • 24時間サポート330円/月
備考
  • 地下鉄東西線醍醐駅徒歩19分/更新料:無 更新手数料:22000円

情報掲載元物件はこちら
(株)京都ライフ今出川店
TEL: 075-414-2588

この物件を取り扱う店舗

(株)京都ライフ今出川店 取引態様:仲介
免許番号: 京都府知事(11)第6353号 / (公社)京都府宅地建物取引業協会会員 / (公社)近畿地区不動産公正取引協議会加盟
  • 駅徒歩3分以内
  • 女性スタッフ
  • 開店10年以上
  • 引越会社紹介
  • 多店舗展開
京都ライフ今出川店は(株)同志社エンタープライズ提携の住まい斡旋指定業者です。
同志社大学の学生様は当店へ!
京都府京都市上京区烏丸通今出川上る御所八幡町 西側115 コーポ千尋1階
09:30~19:00
定休日: 無休
地下鉄烏丸線/今出川駅 歩1分

075-414-2588
  • 部屋情報
  • 地図・周辺環境
  • エリアの口コミ

【掲載物件情報について】

・SUUMOは「自ら居住するための住宅」をお探しの方に向けたポータルサイトです。契約者以外の方が使用する(例:第三者に宿泊させる等)ことを目的としたお問合せはご遠慮ください


・SUUMOではユーザーの皆様に最も信頼されるサイトを目指して、物件情報の精度向上に努めております。SUUMOに掲載されている物件情報について「事実と異なる点や誤解を招く表現がある」「成約済の物件が掲載されている」などにお気づきになりましたら、以下のページからご連絡ください

その他の情報

最寄駅から探す

最寄駅の沿線から探す

↑ページの先頭へ戻る

お気に入りに追加しました。