ファミールグラン銀座4丁目オーセンティア

15.8万円
管理費・共益費  15000円
15.8万円
15.8万円
保証金   -
敷引・償却   -
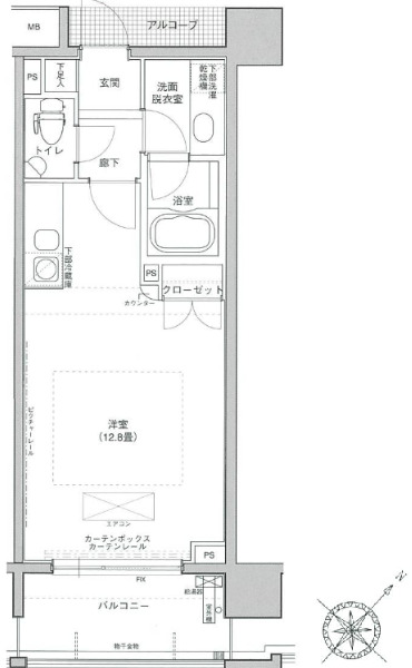
ワンルーム
31.56m2
南東
マンション
築22年
東京都中央区銀座4
東京メトロ銀座線/銀座駅 歩5分 [乗り換え案内]
都営浅草線/東銀座駅 歩1分 [乗り換え案内]
東京メトロ日比谷線/築地駅 歩5分 [乗り換え案内]
(株)リブマックスリーシング博多駅前店
TEL: 092-419-2290

お電話の際は、SUUMOを見たとお伝えいただくとスムーズです。

  • 部屋情報
  • 地図・周辺環境
  • エリアの口コミ
空き巣対策として心強い防犯カメラ付き物件です
セキュリティ面は、TVインターホン・オートロックなど充実しているので安心して生活できます。室内設備は洗面化粧台・浴室乾燥機など大変充実しております。光回線を繋げましたのでパソコン作業がスムーズです。
  • 1/15
  • 2/15
  • 3/15
  • 4/15
  • 5/15
  • 6/15
  • 7/15
  • 8/15
  • 9/15
  • 10/15
  • 11/15
  • 12/15
  • 13/15
  • 14/15
  • 15/15
建物外観
※写真に誤りがある場合は こちら
(株)リブマックスリーシング博多駅前店
TEL: 092-419-2290

部屋の特徴・設備

  • バストイレ別、バルコニー、エアコン、クロゼット、フローリング、TVインターホン、浴室乾燥機、オートロック、室内洗濯置、陽当り良好、シューズボックス、システムキッチン、追焚機能浴室、温水洗浄便座、脱衣所、エレベーター、洗面所独立、洗面化粧台、宅配ボックス、光ファイバー、外壁タイル張り、即入居可、防犯カメラ、IHクッキングヒーター、照明付、分譲賃貸、オートバス、冷蔵庫、全居室フローリング、デザイナーズ、CS、ネット専用回線、駅まで平坦、洗濯機、浄水器、床暖房、エアコン全室、乾燥機、24時間換気システム、平坦地、人感照明センサー、耐火構造、耐震構造、2駅利用可、3沿線以上利用可、24時間ゴミ出し可、敷地内ごみ置き場、都市ガス、洗面所にドア、BS、IT重説 対応物件、初期費用カード決済可

物件概要

情報の見方

間取り詳細 - 構造 鉄骨鉄筋
階建 7階/13階建 築年月 2004年2月
エネルギー
消費性能
- 断熱性能 -
目安光熱費
  • -
損保 - 駐車場 -
入居 取引態様 仲介
条件 - 取り扱い店舗
物件コード
6508992
SUUMO
物件コード
100478233331 総戸数 96戸
情報更新日 2025/12/23 次回更新予定日 2025/12/31
契約期間
  • 普通借家 2年
仲介手数料
  • 0.55ヶ月
保証会社
  • 保証会社利用可 必須 初回保証料:月額総賃料の50%

情報掲載元物件はこちら
(株)リブマックスリーシング博多駅前店
TEL: 092-419-2290

この物件を取り扱う店舗

(株)リブマックスリーシング博多駅前店 取引態様:仲介
免許番号: 国土交通大臣(3)第8116号 / (公社)福岡県宅地建物取引業協会会員 / (一社)九州不動産公正取引協議会加盟
  • 駅徒歩3分以内
  • 外国語対応可
  • 開店10年以上
  • 賃貸保証対応
  • 引越会社紹介
★どのような事でも「ご相談」ください。お客様の希望物件が見つかるまで、とことんお付き合いさせて頂きます。★
福岡県福岡市博多区博多駅前2-7-9 ホテルリブマックス博多駅前2階
9:00~19:00
定休日: 水曜・木曜
JR鹿児島本線/博多駅 歩7分

092-419-2290
  • 部屋情報
  • 地図・周辺環境
  • エリアの口コミ

【掲載物件情報について】

・SUUMOは「自ら居住するための住宅」をお探しの方に向けたポータルサイトです。契約者以外の方が使用する(例:第三者に宿泊させる等)ことを目的としたお問合せはご遠慮ください


・SUUMOではユーザーの皆様に最も信頼されるサイトを目指して、物件情報の精度向上に努めております。SUUMOに掲載されている物件情報について「事実と異なる点や誤解を招く表現がある」「成約済の物件が掲載されている」などにお気づきになりましたら、以下のページからご連絡ください

その他の情報

最寄駅から探す

最寄駅の沿線から探す

↑ページの先頭へ戻る

お気に入りに追加しました。